Warszawa, Praga-Północ, Stara Praga

Mieszkanie na sprzedaż

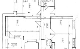
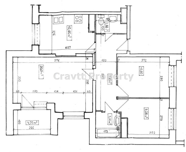
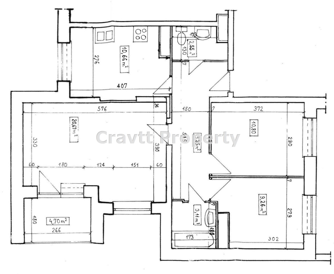
Opis nieruchomości

Biuro nieruchomości Cravtt Property ma przyjemność zaprezentować do sprzedaży piękne mieszkanie o powierzchni 66 m2 na Starej Pradze - ul.Targowa.
W skład nieruchomości wchodzą:
- salon z wyjściem na dużą loggię,
- sypialnia,
- pokój/gabinet,
- widna kuchnia z zabudową,
- duża łazienka z wanną i bidetem,
- łazienka z prysznicem i wc,
- przedpokój.

Do mieszkania piwnica na poziomie -1. Dodatkowo  pomieszczenie gospodarcze na półpiętrze około 6m2.

Mieszkanie w super klasycznym układzie. Rozkładowe, trzy oddzielne pokoje, duża, widna, w pełni wyposażona kuchnia. Dodatkowo łazienka z wanną i bidetem, oraz druga łazienka z prysznicem i wc. Wyjątkowość rozkładu, to również wystawa okien na trzy strony świata, dzięki czemu uzyskujemy idealną cyrkulację powietrza. Mieszkanie w stanie do zamieszkania, ewentualnego odświeżenia. 

Lokal usytuowany na 5 piętrze, 10-cio piętrowego budynku z 1992 roku. Czyste, zadbane klatki schodowe. Zamknięte, strzeżone osiedle z całodobową ochroną, zagospodarowane dużą ilością zieleni, boisko do koszykówki. Bardzo dużo miejsc postojowych dla mieszkańców. 

Rewelacyjna lokalizacja, wszędzie blisko. W najbliższej okolicy znajdziemy, przedszkola, szkoły, uczelnie wyższe (SPWS), punkty użyteczności publicznej, sklepy, Galeria Wileńska, Centrum Praskie Koneser,Teatr Powszechny po drugiej stronie ulicy.
Perfekcyjna komunikacja. Metro Stadion Narodowy, kilka linii tramwajowych i autobusowych, PKP, SKM. 

Mieszkanie idealne dla rodziny.

Zapraszam na prezentację
Piotr Kalinowski
607 72 97 97


 

Nota prawna

Opis oferty zawarty na stronie internetowej sporządzany jest na podstawie oględzin nieruchomości oraz informacji uzyskanych od właściciela, może podlegać aktualizacji i nie stanowi oferty określonej w art. 66 i następnych K.C.

Szczegóły oferty

Symbol oferty JASP-MS-1865
Powierzchnia 66,00 m²
Liczba pokoi 3
Piętro 5
Rodzaj budynku budynek wielorodzinny
Technologia budowlana cegła i gazobeton
Liczba pięter w budynku 10
Garaż miejsce postojowe przed budynkiem
Piwnica 5,00 m²
Stan lokalu do wprowadzenia
Stan prawny Własność
Okna PCV
Instalacje dobre
Balkon duży
Liczba balkonów 1
Rok budowy 1988
Widok na inne budynki
Gaz jest
Woda ciepła - miejska
Dojazd asfalt
Otoczenie centrum miasta
Ogrzewanie C.O. miejskie
Winda tak
Liczba wind 2
Usytuowanie trójstronne
Drzwi antywłamaniowe tak

Pomieszczenia

Podłogi pokoi parkiet
Typ kuchni kuchnia jasna, osobno
Rodzaj kuchni oddzielna i widna
Podłoga kuchni terakota
Typ łazienki z wanną
Liczba łazienek 2
Glazura łazienki nowego typu
Wyposażenie łazienki kabina prysznicowa, wanna
Liczba WC 2
Glazura WC nowego typu
Podłoga WC terakota
Liczba przedpokoi 1
Podłoga przedpokoi parkiet

Kalkulator kredytowy

PLN
%
Wysokość raty

Kalkulator kosztów

PLN
PLN
PLN
PLN
PLN
PLN
%
PLN
Podatek od czynności cywilno-prawnych
Taksa notarialna (opłata notarialna)
VAT od taksy notarialnej (opłaty notarialnej)
Wniosek do WKW
VAT od wniosku do WKW
Prowizja agencji nieruchomości
VAT od prowizji agencji nieruchomości
Wypisy aktu notarialnego - około
RAZEM (cena + opłaty)

Podobne oferty

oferta specjalna
mieszkanie na sprzedaż - Warszawa, Targówek

mieszkanie na sprzedaż

Warszawa, Targówek
3 pokoje 75,78 m2 13 196,09 zł/m2
oferta specjalna
mieszkanie na sprzedaż - Warszawa, Włochy, Okęcie

mieszkanie na sprzedaż

Warszawa, Włochy, Okęcie
2 pokoje 37,25 m2 17 959,73 zł/m2
mieszkanie na sprzedaż - Warszawa, Żoliborz

mieszkanie na sprzedaż

Warszawa, Żoliborz
2 pokoje 54,23 m2 18 421,54 zł/m2
oferta specjalna
mieszkanie na sprzedaż - Warszawa, Ochota, Szczęśliwice

mieszkanie na sprzedaż

Warszawa, Ochota, Szczęśliwice
3 pokoje 49,00 m2 19 795,92 zł/m2

Napisz do nas

Proszę wypełnić to pole
Proszę wypełnić to pole
Proszę wypełnić to pole
Proszę wypełnić to pole
Trwa wysyłanie...

Ta strona wykorzystuje pliki cookies w celach statystycznych oraz w celu dostosowania naszych serwisów do indywidualnych potrzeb klientów. Zmiany ustawień dotyczących plików cookie można dokonać w dowolnej chwili modyfikując ustawienia przeglądarki. Korzystanie z tej strony bez zmian ustawień dotyczących cookies oznacza, że będą one zapisane w pamięci urządzenia.

rozumiem