Warszawa, Żoliborz

Mieszkanie na sprzedaż

Opis nieruchomości

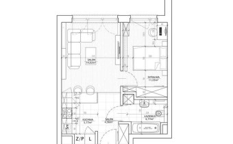
Do sprzedania mieszkanie zlokalizowane przy ul. Przasnyskiej składające się z:
- salonu
- sypialni
- aneksu kuchennego
- łazienki
- przedpokoju
- balkonu

Mieszkanie położone przy zadrzewionej ulicy, na cichym, zamkniętym osiedlu z monitoringiem i ochroną. Ciepłe, słoneczne, z oknami od strony południowej, wychodzącymi na patio.

Mieszkanie, a także budynek i osiedle w wysokim standardzie wykończenia. W pełni wyposażona kuchnia z lodówką, zamrażarką, piekarnikiem, płytą indukcyjną, zmywarką i meblami w zabudowie.

Bardzo dobra komunikacja: 200 m od przystanku autobusowego (dojazd do metra przy Placu Wilsona w 5 minut) i 600 m od przystanku linii tramwajowych prowadzących do centrum miasta.

W odległości 1 km (2 przystanki) centrum handlowe Arkadia.
 

Szanowni Państwo, przed prezentacją mieszkania pośrednik reprezentujący agencję nieruchomości, podpisuje z potencjalnie zainteresowanym klientem Umowę Pośrednictwa.

Pobieramy prowizję od kupującego.


Zapraszam na prezentację,
Przemysław Rzeczkowski
Tel. 721 080 546

Nota prawna

Opis oferty zawarty na stronie internetowej sporządzany jest na podstawie oględzin nieruchomości oraz informacji uzyskanych od właściciela, może podlegać aktualizacji i nie stanowi oferty określonej w art. 66 i następnych K.C.

Szczegóły oferty

Symbol oferty JASP-MS-1940
Powierzchnia 41,00 m²
Liczba pokoi 2
Piętro 5
Rodzaj budynku apartamentowiec
Technologia budowlana cegła
Opłaty w czynszu Części wspólne
Opłaty wg liczników woda
Liczba pięter w budynku 6
Stan lokalu bardzo dobry
Stan prawny Własność
Mies. czynsz admin. 650 PLN
Okna DREWNIANE NOWY TYP
Instalacje ELEKTRYCZNA
Balkon jest
Liczba balkonów 1
Rok budowy 2014
Widok park/skwer
Gaz brak
Woda ciepła - miejska
Dojazd ASFALTOWA
Otoczenie park
Ogrzewanie C.O. miejskie
Winda tak
Liczba wind 2
Usytuowanie jednostronne

Pomieszczenia

Podłogi pokoi drewniana
Typ kuchni aneks kuchenny
Rodzaj kuchni aneks kuchenny
Podłoga kuchni terakota
Typ łazienki razem z wc
Liczba łazienek 1
Glazura łazienki glazura
Podłoga łazienki terakota
Wyposażenie łazienki lustro
Liczba przedpokoi 1
Podłoga przedpokoi terakota

Kalkulator kredytowy

PLN
%
Wysokość raty

Kalkulator kosztów

PLN
PLN
PLN
PLN
PLN
PLN
%
PLN
Podatek od czynności cywilno-prawnych
Taksa notarialna (opłata notarialna)
VAT od taksy notarialnej (opłaty notarialnej)
Wniosek do WKW
VAT od wniosku do WKW
Prowizja agencji nieruchomości
VAT od prowizji agencji nieruchomości
Wypisy aktu notarialnego - około
RAZEM (cena + opłaty)

Podobne oferty

oferta specjalna
mieszkanie na sprzedaż - Warszawa, Targówek

mieszkanie na sprzedaż

Warszawa, Targówek
3 pokoje 75,78 m2 13 196,09 zł/m2
oferta specjalna
mieszkanie na sprzedaż - Warszawa, Ochota

mieszkanie na sprzedaż

Warszawa, Ochota
2 pokoje 57,00 m2 15 614,04 zł/m2
oferta specjalna
mieszkanie na sprzedaż - Warszawa, Ochota, Stara Ochota

mieszkanie na sprzedaż

Warszawa, Ochota, Stara Ochota
2 pokoje 49,27 m2 16 034,10 zł/m2
oferta specjalna
mieszkanie na sprzedaż - Warszawa, Bielany

mieszkanie na sprzedaż

Warszawa, Bielany
4 pokoje 87,37 m2 11 434,13 zł/m2

Napisz do nas

Proszę wypełnić to pole
Proszę wypełnić to pole
Proszę wypełnić to pole
Proszę wypełnić to pole
Trwa wysyłanie...

Ta strona wykorzystuje pliki cookies w celach statystycznych oraz w celu dostosowania naszych serwisów do indywidualnych potrzeb klientów. Zmiany ustawień dotyczących plików cookie można dokonać w dowolnej chwili modyfikując ustawienia przeglądarki. Korzystanie z tej strony bez zmian ustawień dotyczących cookies oznacza, że będą one zapisane w pamięci urządzenia.

rozumiem